Хозяйственно-бытовые очистные сооружения
Гофрированные трубы
Колодцы
Очистные сооружения
Емкости и резервуары
Насосные системы
Дополнительное оборудование

Мы поставляем очистные сооружения хозяйственно-бытовых сточных вод производительностью до 2000 м³/сутки и сбросом в водоём рыбохозяйственного назначения
Производительность: 100-2000 м³/сут
Материал корпуса: Металл
Цена: По запросу
Установка полной биологической очистки предназначена для глубокой биологической очистки хозяйственно-бытовых и близких к ним по составу производственных сточных вод производительностью от 100 до 2000 м3/сут при сбросе в водные объекты рыбохозяйственного назначения.
Материал корпуса – металл с антикоррозионной обработкой
Простой текст
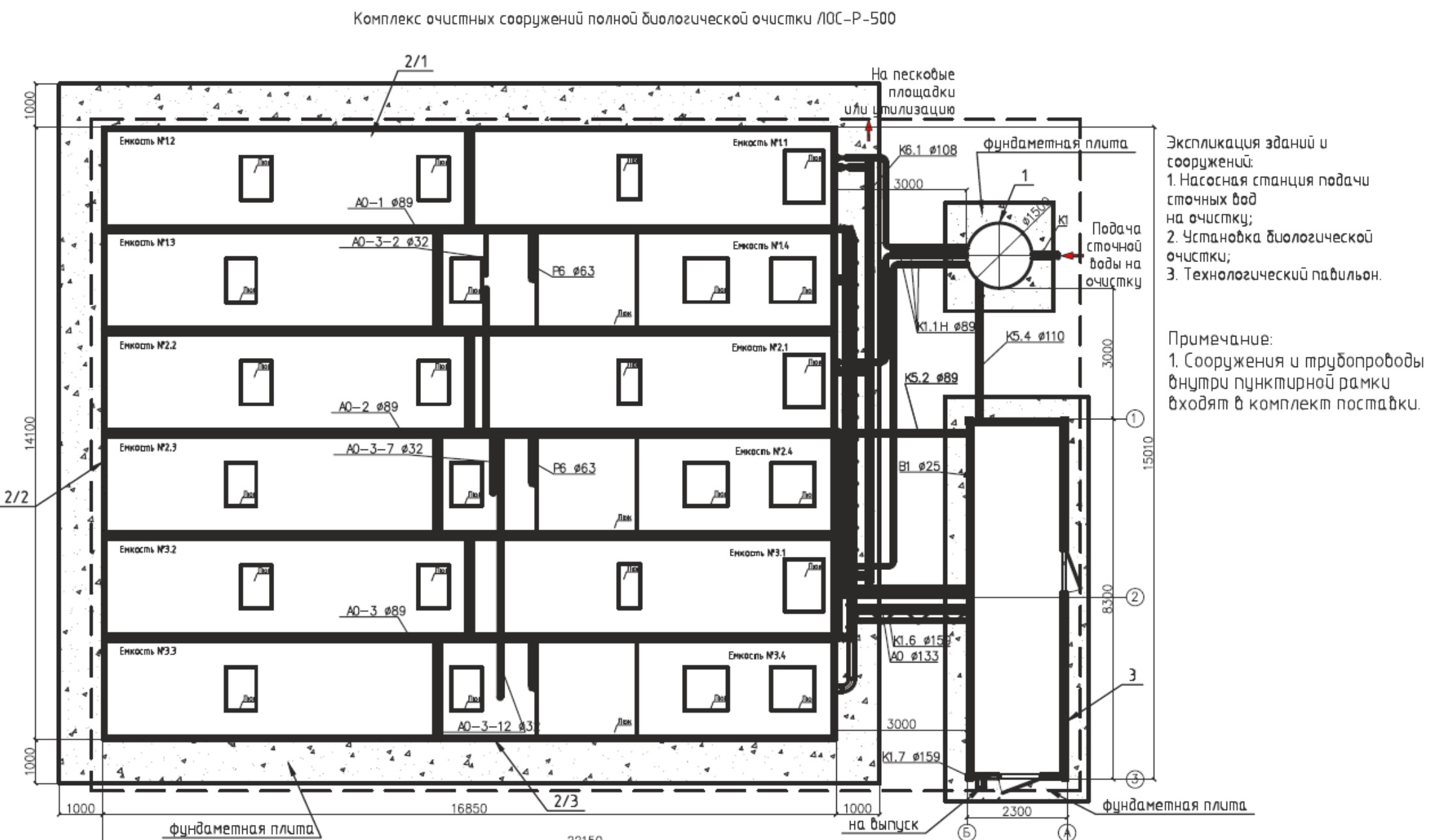
Исходные сточные воды после насосной станции (КНС) (смотрите ниже общий план очистных сооружений, поз. 1) поступают в песколовку, в которой оседают тяжелые минеральные частицы.
Песчаная пульпа из песколовки отводится на песковые площадки. Сточные воды из песколовки поступают на установку полной биологической очистки (поз. 2), которая состоит из биореактора-нитрификатора (аэротенка) вторичного отстойника и блока доочистки.

В аэротенке происходит окисление органических загрязнений и ионов аммония. Денитрификация достигается за счет создания аноксидных условий в биопленке, образующейся внутри блока биологической загрузки (ББЗ), занимающей часть аэротенка.
Разделение активного ила и очищенной сточной воды происходит в тонкослойном вторичном отстойнике. Из осадочной части отстойника при помощи эрлифта осуществляется циркуляция активного ила в аэротенк. Доочистка сточных вод проводится в фильтре-биореакторе из блоков биологической загрузки (ББЗ).

Регенерация загрузки проводится воздухом, подаваемым из основной системы подачи и распределения воздуха. После доочистки стоки поступают на обеззараживание ультрафиолетом в установке УФО и отводятся на сброс.
Избыточный активный ил из вторичного отстойника периодически откачивается эрлифтом в емкость-илонакопитель, откуда насосом подается на установку обезвоживания осадка, размещаемую в технологическом павильоне (поз.3). Обезвоженный активный ил направляется на дальнейшую обработку, предусмотренную проектом, либо на утилизацию.
Вы всегда можете обратиться за консультацией к нашим технологам отдела ООО «ТРУБНЫЙ ЗАВОД». Телефон горячей линии:
+7 (499) 286-93-88
ИНН: 502918214
КПП: 503801001
ООО Трубный завод
Г. Пушкино, проезд 1-й Некрасовский стр. 6, офис 402.